注文住宅 CONTACT
MENU
公式SNSアカウント
  • Instagram
  • Instagram
  • Instagram
  • Instagram
  • Youtube
  • Line

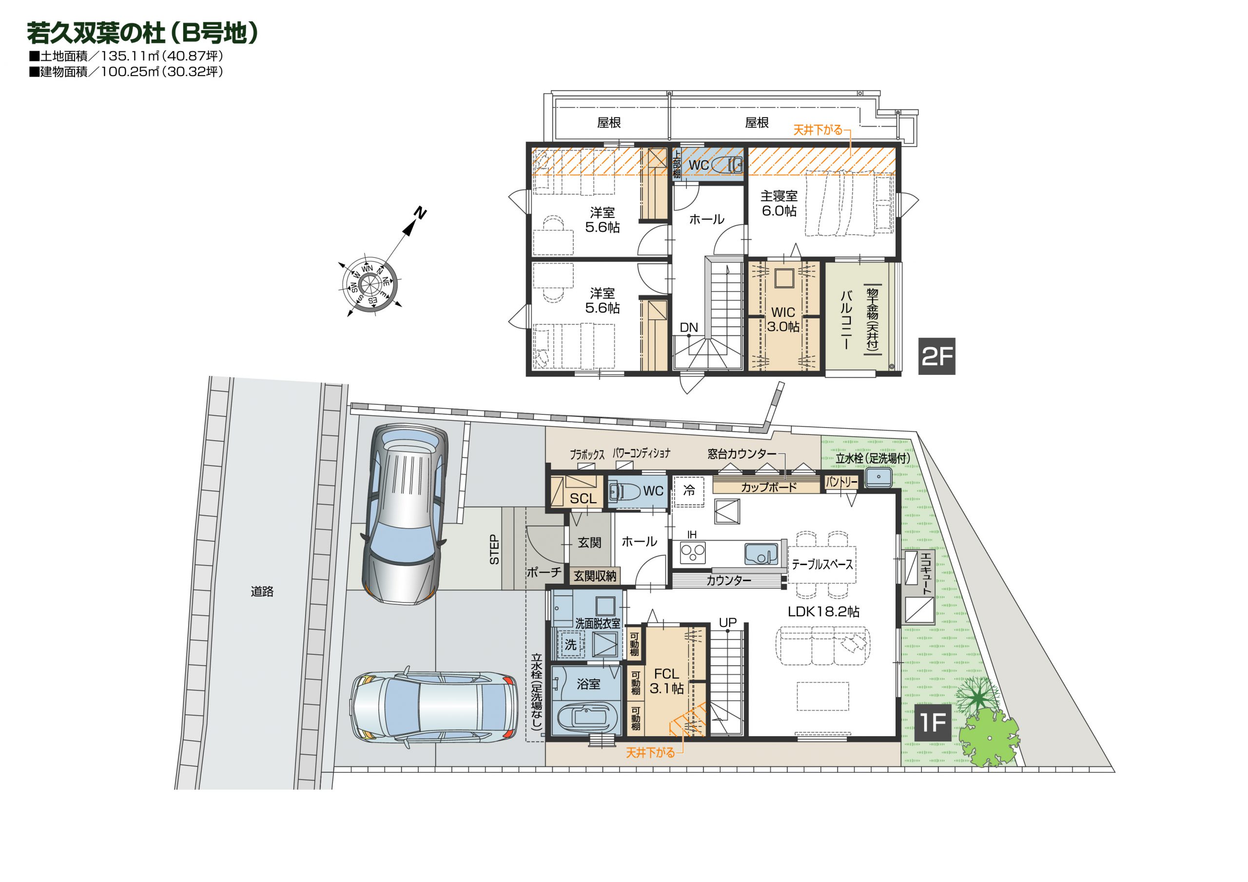
若久双葉の杜|B号地

若久双葉の杜|B号地

B 号地
B 号地

土地面積
135.11㎡ (40.87坪)
間取り
3LDK+S
建物面積
100.25㎡ (30.32坪)
駐車場
2台

価格未定

間取り図

区画図
区画図

物件情報

住所
福岡市南区若久2丁目37-12
価格
未定
間取り
3LDK+S
駐車場
2台
最寄駅
土地面積
135.11㎡ (40.87坪)
建物面積
100.25㎡ (30.32坪)
完成時期
2026年7月予定
引き渡し
応相談
前面道路
東南側4.0m
敷地権利
所有権
地目
宅地
用途地域
第2種中高層住居専用地域
建ぺい率
60%
容積率
200%
建築確認番号
第 R07確認建築福住セ本01291 号
取引き態様
売主

見学予約・資料請求

当社は強引な営業行為は行いません。
お気軽にお問い合わせください。

WEBからのお問い合わせ

山根木材ホーム 福岡支社

0120-561-728

受付時間/9:00~18:00 定休/火・水(祝除く)

売主

売主
山根木材ホーム株式会社 福岡支社
免許番号
国土交通大臣(3)第8595号
電話番号
0120-561-728
事務所所在地
〒811-1362 福岡市南区長住1丁目1番48号

WEBからのお問い合わせ

見学予約/資料請求

山根木材ホーム 福岡支社

福岡支社

0120-561-728