注文住宅 CONTACT
MENU
公式SNSアカウント
  • Instagram
  • Instagram
  • Instagram
  • Instagram
  • Youtube
  • Line
ウッディタウン小笹4丁目 | B号地

ウッディタウン小笹4丁目 | B号地

ウッディタウン小笹4丁目 | B号地

B 号地
B 号地

中央区で叶えるゆとり
敷地44坪超の長期優良住宅

土地面積
147.98㎡ (44.76坪)
間取り
3LDK+
建物面積
101.01㎡ (30.55坪)
駐車場
2台

販売価格(税込)

4,930万円

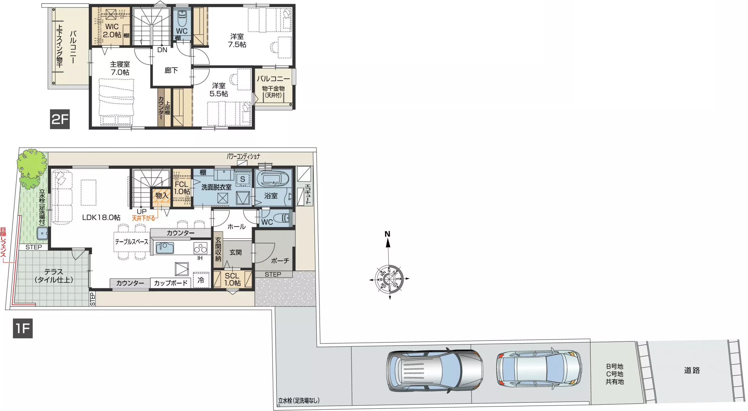
間取り図

区画図
区画図

1階は3.5帖のファミリークロークを配置し、帰宅・洗濯動線がスムーズな「家事ラク」設計。カウンター付きLDKはテラスと繋がり開放的です。2階は全室収納付きでプライベートな時間も確保。機能と心地よさを両立させています。

物件情報

住所
福岡市中央区小笹4丁目14-4
価格
4,930万円
間取り
3LDK+
駐車場
2台
最寄駅
西鉄バス「笹丘二丁目」バス停まで250m
土地面積
147.98㎡ (44.76坪)
建物面積
101.01㎡ (30.55坪)
完成時期
2025年9月
引き渡し
即入居可
前面道路
東側4.6m
敷地権利
所有権
地目
宅地
用途地域
第一種中高層住居専用地域
建ぺい率
60%
容積率
150%
建築確認番号
第R07建築確認福住セ本00239号
取引き態様
売主

見学予約・資料請求

当社は強引な営業行為は行いません。
お気軽にお問い合わせください。

WEBからのお問い合わせ

山根木材ホーム 福岡支社

0120-561-728

受付時間/9:00~18:00 定休/火・水(祝除く)

売主

売主
山根木材ホーム株式会社 福岡支社
免許番号
国土交通大臣(3)第8595号
電話番号
0120-561-728
事務所所在地
〒811-1362 福岡市南区長住1丁目1番48号
見学予約 資料請求