注文住宅 CONTACT
MENU
公式SNSアカウント
  • Instagram
  • Instagram
  • Instagram
  • Instagram
  • Youtube
  • Line

圧巻の景色に見惚れる 和風ゲストハウス

廿日市市 Nさま邸

圧巻の景色に見惚れる 和風ゲストハウス

リフォーム物語

築34年の日本家屋を購入された施主様より、一棟貸しの宿に改装したいとご相談いただきました。

N様からいただいたのは「和の雰囲気を大切にしつつ、この宿ならではの特別な体験ができるようにリフォームしてほしい」というご要望。

もともと備わっていた眺望の良さや、日本家屋ならではの雰囲気あるの和の設えを活かしながら、国内外のゲストにゆっくりくつろいでいただけるような間取りと内装のご提案を行いました。

DATA

廿日市市 Nさま邸(築34年)

延床面積/ 352.20㎡

工事期間/ 約6ヶ月

構造形式/ 木造在来

 

リフォームポイント

日本三景・宮島を臨む好立地を活かし、景色にこだわったリフォームを実施。

21.8帖のリビングは、瀬戸内の穏やかな海を眺めながら、ゆったりと会話を楽しめるスペースとなりました。

さらに五右衛門風呂をイメージした浴槽や洗面化粧室からも、おだやかな海と対岸の宮島が望めます。

和風住宅の良さと素晴らしい景色を存分に堪能できる、唯一無二の宿へと生まれ変わりました。

リフォームを終えて(担当者の声)

これまで使ったことのない仕様にもお応えできるよう施工方法を検討し、担当者と一緒に現場で試行錯誤・微調整を繰り返しました。

リビングの床に採用したヨーロピアンオークの無垢材や、キッチンのアクセントタイル、天然石の壁材など、個性豊かな素材にもぜひ注目してほしいです。

 

山根木材のお悩み解決リフォーム提案

リビングダイニング

キッチン

洗面所

浴室

Photos

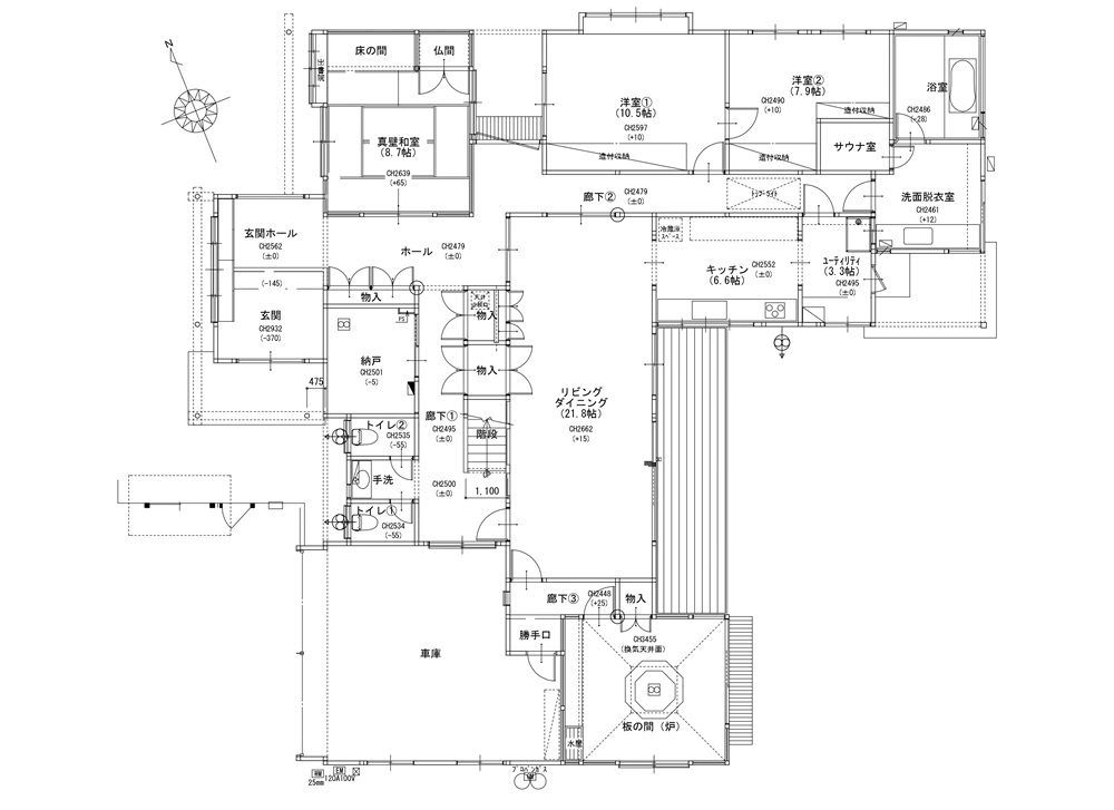
間取り

Before

Before 間取り

After

After 間取り

お問い合わせ

当社は強引な営業行為は行いません。リフォームに関するお悩みなどお気軽にお問合せください。

10時〜18時 0120-543-631