注文住宅 CONTACT
MENU
公式SNSアカウント
  • Instagram
  • Instagram
  • Instagram
  • Instagram
  • Youtube
  • Line

30年越しの夢を叶え 和を楽しむ暮らしへ

広島市Kさま邸

30年越しの夢を叶え 和を楽しむ暮らしへ

リフォーム物語

 築27年を迎え、建物の経年劣化が気になり始めたというK様よりご相談をいただきました。定年退職を機に、これからの暮らしを豊かに楽しむための全面リフォームをご希望です。K様が抱き続けてこられた「和を楽しむ暮らし」という夢の実現に向け、ご家族皆様が心安らぐ住まいとなるようお手伝いいたしました。

DATA

戸建て〈築27年〉

施工面積:123.92㎡

工事期間:約7ヶ月

構造形式:2×4

家族構成:ご主人(60代)奥さま(50代)お子さん(20代)

 

リフォームポイント

間取り変更が難しい2×4工法ですが、内改装の工夫で雰囲気を刷新しました。一部増築や壁の撤去を行い、開放的なキッチンや日当たりの良い広縁(ひろえん)を新設。ご夫婦の定年後の生活に合わせ、家事や移動がスムーズな生活動線も実現しています。構造上の制限をクリアしつつ、快適な時間を生み出す住まいへと再生しました。

リフォームを終えて(お客様の声)

30年前、展示場で一目惚れした和風住宅。当時は洋風の家を選びましたが、心の片隅にはずっとあの時の憧れがありました。

夫の定年を機に、これからの人生を理想の空間で過ごそうとリフォームを決意。完成した我が家は心地よい時間が穏やかに流れ、まさに「30年越しの初恋が実った」気分です。

 

山根木材のお悩み解決リフォーム提案

LDK

キッチン

キッチン

和室

洗面所

玄関

Photos

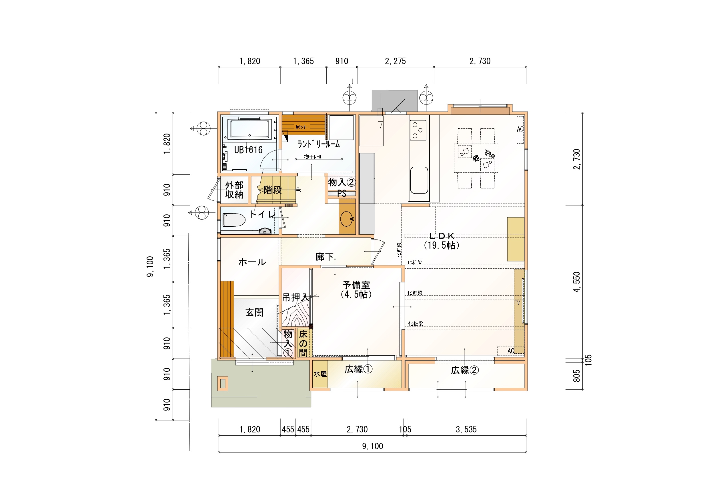
間取り

Before

Before 間取り

After

After 間取り

お問い合わせ

当社は強引な営業行為は行いません。リフォームに関するお悩みなどお気軽にお問合せください。

10時〜18時 0120-543-631