注文住宅 CONTACT
MENU
公式SNSアカウント
  • Instagram
  • Instagram
  • Instagram
  • Instagram
  • Youtube
  • Line

イベント情報Events

  • 注文住宅
  • 見学会
  • 広島エリア

“暮らしが変わる家の動線”を体感できるモデルハウス完成見学会 in 緑井

| 日 時 |
2026年1月10日(土)~12日(月・祝)
10:00~18:00
| 場 所 |
ウッディタウン緑井

完全予約制

所要時間 2時間ほど

見どころポイント

  • 暮らしやすさにつながる「家の動線」
  • 山根木材の「暮らしから考える家づくり」
  • MyCraftの住まいを実物で見学できる初めての見学会

モデルハウス見学会について

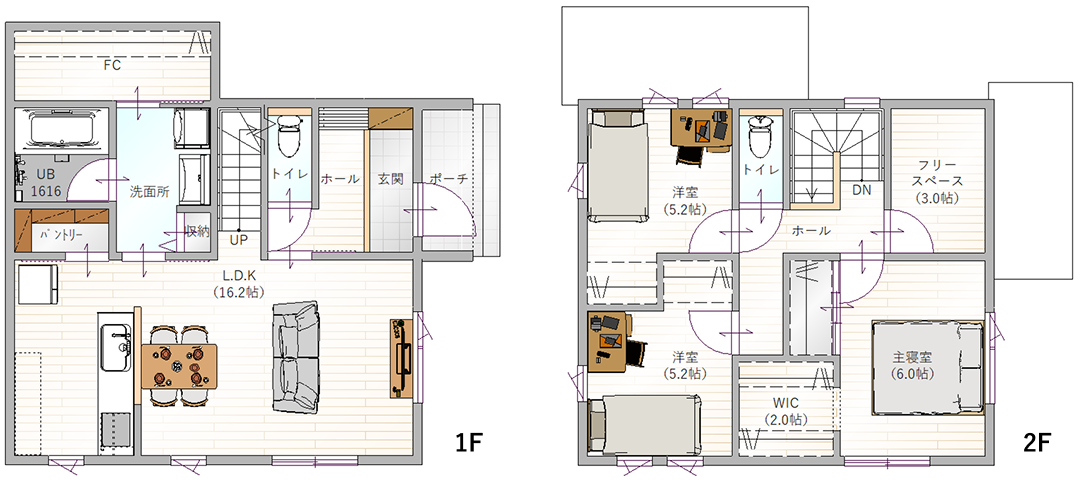
この見学会では、図面では分かりにくい“暮らしの動き”を、実際のモデルハウスを歩きながら確かめることができます。
家事や身支度をできるだけスムーズに進めたい、朝の忙しい時間も混雑しないようにしたい──
そんな暮らし方をもとに計画された住まいの工夫を、体験を通じてご覧いただける機会です。

この見学会で体感できること

  • 洗面とファミリークローゼットが続くスムーズな身支度動線
  • 「洗濯→干す→しまう」が短い家事動線
  • 家族の動きを考えた動線設計
  • 家事や身支度の行き来を少なくしたい
  • 間取りの良し悪しを実際に歩いて判断したい
  • 動線や収納計画を重視して家づくりを考えたい
  • MyCraftを実物で見てみたい
  • 豪華なモデルハウスより「リアルな暮らし」が想像できる家を見たい

ライフスタイルから家づくりをご提案しています

山根木材では、暮らし方に合わせて「うたげ」「こかげ」「ちはや」「つきよ」の
4つのライフスタイルから家づくりをご提案しています。
今回の住まいは、家事や身支度をテキパキこなしたいご家庭に合う「ちはや」スタイルをもとに設計されたプランです。

イベント当日にも、11問の質問に答えるだけで、ご家族に合ったライフスタイルが分かる簡易診断をご利用いただけます。
「わが家らしい暮らし方」を知るヒントとして、ぜひお試しください。
もちろん、ご家族の暮らし方に合わせた住まいの考え方もご提案可能です。

MyCraft(マイクラフト)について

今回ご覧いただけるモデルハウスは、そのライフスタイル提案の考え方をもとにした、
山根木材のセミオーダー住宅「MyCraft(マイクラフト)」の住まいです。

MyCraftは、山根木材の一級建築士が培ったノウハウをもとに、ご家族の「暮らし方」や「好き」を反映しながらつくる新しい住まい。
複雑になりがちな家づくりも、分かりやすいプランと選択肢で進められるため、理想の住まいを無理なく実現できます。
1,980万円〜の検討しやすい価格帯で、長期優良住宅仕様の安心性能も標準で備えています。

イベント当日にも、11問の質問に答えるだけで、ご家族に合ったライフスタイルが分かる簡易診断をご利用いただけます。
「わが家らしい暮らし方」を知るヒントとして、ぜひお試しください。
もちろん、ご家族の暮らし方に合わせた住まいの考え方もご提案可能です。

こんな方におすすめです

  • 洗面とファミリークローゼットが続くスムーズな身支度動線
  • 「洗濯→干す→しまう」が短い家事動線
  • 家族の動きを考えた動線設計
  • 家事や身支度の行き来を少なくしたい
  • 間取りの良し悪しを実際に歩いて判断したい
  • 動線や収納計画を重視して家づくりを考えたい
  • MyCraftを実物で見てみたい
  • 豪華なモデルハウスより「リアルな暮らし」が想像できる家を見たい

図面だけでは気づきにくい暮らしの動きを、実際の空間の中で確かめていただけます。
動線の良さを重視して家づくりを検討されている方には、特に参考にしていただける見学会です。

\新春限定/ご家族で楽しめる企画をご用意しています

お子さまに大人気!ショベルカーでお菓子すくい

ショベルカー耐荷重:25kg。

MAP

お電話でのお問い合わせ

<お問い合わせ先・主催>
山根木材ホーム株式会社 広島支社 営業時間/10:00~18:00 定休/ 火・水(祝除く)