目覚まし時計カンタン1分でプラン作成!

  • 1ライフスタイル
  • 2間口
  • 3プラン
  • 4スペース
  • 5外観
  • 6内装
  • 7オプション
  • うたげ
  • こかげ
  • ちはや
  • つきよ
  • 選択しない

    選択しない

建築予定の土地の間口がお分かりの場合、
おおよその広さを選択してください。

  • 土地未定・分からない

  • 4.55m

  • 5.46m

  • 6.37m

  • 7.28m

  • 8.19m

  • 9.10m~

  • 戻る
  • 次へ進む
  • 戻る
  • 次へ進む
間取りのイメージ図

間口:道路に面している正面の幅

(目安として土地の幅から2mマイナスしたものを選んでください)

98件のプランをご提案いたします。
ご希望のプランをご選択ください。

  • モノがすっきり収まる「ちはやプラン」

    ちはや
    間取り図
    • ちはや
    • シューズクロークあり

    玄関横には大容量のシューズクロークを用意。ベビーカーやお外遊びの道具が無理なく収まります。さらにキッチン横にはパントリー、洗面脱衣室にも可動棚を設置。散らかりがちな場所にも収納スペースを設けています。

    モノがすっきり収まる「ちはやプラン」

  • 書斎付きリビングが魅力の「つきよプラン」

    つきよ
    間取り図
    • つきよ
    • 書斎あり

    リビングの一角に書斎を用意。お子様の宿題スペースやちょっとした作業場、読書スペースとして活躍します。セミクローズドな設計でリビングとゆるくつながり、家族の気配を感じられるのもポイントです。

    書斎付きリビングが魅力の「つきよプラン」

  • 広いランドリールームがある「つきよプラン」

    つきよ
    間取り図
    • つきよ
    • ファミリークロークあり

    洗面脱衣室の奥にランドリールームを用意。洗濯物を部屋干ししたり、作業台を置いて衣服を畳んだり、アイロンがけをしたり…と、一部屋で洗濯物が一気に片付きます。キッチンへの動線も良く、家事効率がグッとアップ!

    広いランドリールームがある「つきよプラン」

  • 広い土間スペースが魅力の「こかげプラン」

    こかげ
    間取り図
    • こかげ
    • 土間スペースあり

    玄関土間スペースが特徴のプラン。汚れに強い床材のため、趣味のバイクや自転車を置いてのメンテナンスも可能です。リビングとつながっているので、家族と会話しながら趣味の時間を楽しむことができます。

    広い土間スペースが魅力の「こかげプラン」

  • 広いリビングに仲間が集う「うたげプラン」

    うたげ
    間取り図
    • うたげ
    • 広いリビング

    リビングは19帖。友人を招いてワイワイ過ごしても圧迫感のない広さが魅力です。大きなL型ソファーもラクラク置ける空間は、模様替えもしやすくインテリアを選ぶ楽しみが増えるはず。

    広いリビングに仲間が集う「うたげプラン」

  • 畳でのんびりゴロゴロ「こかげプラン」

    こかげ
    間取り図
    • こかげ
    • 畳コーナーあり

    リビングに3帖の畳スペースを用意。やわらかな畳の上でお子様を遊ばせたり、一緒にゴロゴロお昼寝したり…と、時間を忘れてくつろげるスペースです。洗面脱衣室に可動棚、キッチン横にパントリーもあり収納面も◎

    畳でのんびりゴロゴロ「こかげプラン」

  • ダイニングでの会話が弾む「うたげ」プラン

    うたげ
    間取り図
    • うたげ
    • 広いダイニング

    広々としたリビングは19帖。キッチンがダイニングテーブルと横並びになっているため、調理・配膳・片付けの動線が短くなっています。キッチンからの声も聞き取りやすく、料理中でも家族との会話が弾みます。

    ダイニングでの会話が弾む「うたげ」プラン

  • 〝好きに浸る〟空間がある「つきよプラン」

    つきよ
    間取り図
    • つきよ
    • 収納充実

    趣味のフィギュアや漫画、コレクションをずらっと並べたい方にぴったりのホビースペースを用意。壁一面の可動棚は、飾りたい物に合わせて高さを調整できます。好きなものだけに囲まれるお気に入りの空間になるはず!

    〝好きに浸る〟空間がある「つきよプラン」

  • ゆるくつながる書斎が魅力の「つきよプラン」

    つきよ
    間取り図
    • つきよ
    • 書斎あり

    リビングの一角に書斎スペースを用意。あえて扉を設けないことで、リビングで過ごす家族とのつながりも感じられます。テレビ裏の壁に雰囲気の異なるクロスを張って、インテリアのアクセントにするのも◎

    ゆるくつながる書斎が魅力の「つきよプラン」

  • ファミリークローゼット付きの「ちはやプラン」

    ちはや
    間取り図
    • ちはや
    • ファミリークロークあり

    洗面脱衣室の横に大容量のファミリークローゼットを用意。取り込んだ洗濯物もすぐに収納でき、家事にかかる時間を短縮します。家族全員分の衣服をまとめて管理することで、衣替えもグッと楽になるはず。

    ファミリークローゼット付きの「ちはやプラン」

  • 家族の思い出が増える「こかげプラン」

    こかげ
    間取り図
    • こかげ
    • 広いリビング

    大きなダイニングテーブルもゆったり置ける約21帖のリビングが特徴。おじいちゃん・おばあちゃんを呼んでの食事会や会話を楽しむ時間は、家族の思い出になるはずです。ダイニングとリビングの間に棚を置いてゆるく仕切ることも。

    家族の思い出が増える「こかげプラン」

  • 和洋バランスよく取り入れた「こかげプラン」

    こかげ
    間取り図
    • こかげ
    • 畳コーナーあり

    リビング・ダイニングの広さを確保しつつ、畳スペースも用意。和洋どちらの魅力も取り入れたよくばりプランです。畳スペースの上部には吊り押し入れを設置。その下は床の間のように使えるので、季節や節句に合わせた飾りを置くのも◎

    和洋バランスよく取り入れた「こかげプラン」

  • 多彩に使えるカウンターが魅力の「うたげプラン」

    うたげ
    間取り図
    • うたげ
    • 広いダイニング

    約21帖の広いリビングが特徴。キッチンの向かいにある造作カウンターは、休日の朝にカフェ気分でモーニングを食べたり、夜はバーカウンターとしてお酒をたしなんだり…と、さまざまな使い方が可能です。

    多彩に使えるカウンターが魅力の「うたげプラン」

  • 使い方自由な部屋を設けた「つきよプラン」

    つきよ
    間取り図
    • つきよ
    • 収納充実

    キッチンの奥に扉付きのユーティリティースペースを用意。造作カウンターを活用すれば集中して作業ができるワークスペースに、壁面の可動棚を活用すればモノがすっきり収まるパントリーに…と、さまざまな用途に使える空間です。

    使い方自由な部屋を設けた「つきよプラン」

  • 大容量のパントリーがある「ちはやプラン」

    ちはや
    間取り図
    • ちはや
    • 収納充実

    キッチン裏に大容量のパントリーを用意。日々の食品ストックはもちろん、味噌や梅酒、漬物といった手仕事品の瓶や、ウォーターサーバー、2台目冷凍庫も収納できます。週に1度のまとめ買いも安心です。

    大容量のパントリーがある「ちはやプラン」

  • 家の中でもお外気分が楽しめる「うたげプラン」

    うたげ
    間取り図
    • うたげ
    • 土間スペースあり

    リビングと続く土間スペースが特徴。雨で外に出られない日は子供たちの遊び場として活躍。お絵描きや工作など、汚れを気にせず遊ぶことができます。テーブルを置けば外の景色を楽しみながらお茶をすることも。

    家の中でもお外気分が楽しめる「うたげプラン」

  • ひとり時間を大切にする「つきよプラン」

    つきよ
    間取り図
    • つきよ
    • 書斎あり

    ホールを隔てた場所に書斎を設けたプラン。独立性が高くワークスペースとして使えば集中して仕事に取り組めます。書斎以外にも趣味の映画やゲームを楽しんだり、奥様のパウダールームにしたり…と、使い方は無限大!

    ひとり時間を大切にする「つきよプラン」

  • 大きな家具もゆったり置ける「つきよプラン」

    つきよ
    間取り図
    • つきよ
    • 広いダイニング

    約20帖の広いリビングが特徴。大きなソファーやテーブルを置いても圧迫感のない、ゆとりある空間が自慢です。作業台にもなる大きなダイニングテーブルを置けば、お菓子づくりやパン作りといった趣味の料理がはかどりそう!

    大きな家具もゆったり置ける「つきよプラン」

  • 家事ラクを追求した「ちはやプラン」

    ちはや
    間取り図
    • ちはや
    • ファミリークロークあり

    キッチンと洗面脱衣室、階段の距離を近づけて家事動線を短くした〝家事ラク〟プラン。洗面脱衣室の奥にファミリークローゼットを設け、家族の衣服をまとめて収納できます。時間を大切に使う共働きのご夫婦におすすめです。

    家事ラクを追求した「ちはやプラン」

  • モノがすっきり片付く「ちはやプラン」

    ちはや
    間取り図
    • ちはや
    • シューズクロークあり

    三輪車やベビーカー、趣味のキャンプ道具や自転車など、外遊びグッズが多いご家族にピッタリのプラン。大容量のシューズクロークに荷物がすっきり収まります。

    モノがすっきり片付く「ちはやプラン」

  • ひとり時間も家族時間も大切にする「つきよプラン」

    つきよ
    間取り図
    • つきよ
    • 書斎あり

    ひとりの時間も、家族で過ごす時間も大切にしたい方に向けたこのプランは、リビングの書斎がポイント。扉がなくゆるく仕切られているので、家族の気配を感じながら、自分の時間も大切にすることができます。

    ひとり時間も家族時間も大切にする「つきよプラン」

  • 効率重視な間取りの「ちはやプラン」

    ちはや
    間取り図
    • ちはや
    • ファミリークロークあり

    収納を設けた洗面脱衣室の隣に、ファミリークローゼットを用意。洗濯完了した衣服をサッと片付けたい「効率重視」な方にオススメです。散らかりがちなキッチン周りのアイテムも、パントリーにしまえばすっきり!

    効率重視な間取りの「ちはやプラン」

  • 明るく開放的な広々リビングの「うたげプラン」

    うたげ
    間取り図
    • うたげ
    • 広いリビング

    南側に面した約20帖のリビングは、窓からの光をしっかり取り込む明るい空間。横長で家具のレイアウトもしやすく、キッチンからはお子様が遊ぶ様子や家族がくつろぐ姿を眺められるのもうれしいポイントです。

    明るく開放的な広々リビングの「うたげプラン」

  • お気に入りの居場所が見つかる「うたげプラン」

    うたげ
    間取り図
    • うたげ
    • 畳コーナーあり

    リビング、ダイニング、そして窓際の畳スペースと、1つの空間にさまざまな居場所を設けたプラン。約20帖の広さの中で、家族やゲストが思い思いの場所を見つけてくつろげます。

    お気に入りの居場所が見つかる「うたげプラン」

  • 家族が集う ゆとりダイニングの「こかげプラン」

    こかげ
    間取り図
    • こかげ
    • 広いダイニング

    6人掛けのダイニングテーブルを置いてもゆとりあるリビングが特長。子どもの記念日やお祝いで集まった家族がゆったり過ごせる空間です。キッチン横のパントリーに食材をストックして、料理の腕を振るうことも!

    家族が集う ゆとりダイニングの「こかげプラン」

  • リビング収納で散らからない「つきよプラン」

    つきよ
    間取り図
    • つきよ
    • 収納充実

    リビングに壁一面の収納スペースを用意。ちょっとしたアイテムから書類までたっぷりしまえるので、自室にモノを取りに行く手間が省けます。急な来客時にもサッと片づけられるのもポイントです。

    リビング収納で散らからない「つきよプラン」

  • 玄関土間を広く設けた「うたげプラン」

    うたげ
    間取り図
    • うたげ
    • 土間スペースあり

    土間スペースを設けた広く設けたプラン。自転車や子どものスポーツ道具、ベビーカーなど、さっと持って出かけたいアイテムを置くことができます。水や泥汚れを気にしなくていいのもうれしいポイントです。

    玄関土間を広く設けた「うたげプラン」

  • 細かな収納スペースがうれしい「ちはやプラン」

    ちはや
    間取り図
    • ちはや
    • シューズクロークあり

    玄関にはシューズクローク、キッチン横にはパントリー、洗面脱衣室には可動棚、と部屋の各所に収納を設けたプラン。モノの居場所を十分に設けることで、散らかりづらく片づけやすい部屋になります。

    細かな収納スペースがうれしい「ちはやプラン」

  • 収納力ある個室がついた「ちはやプラン」

    ちはや
    間取り図
    • ちはや
    • 書斎あり

    リビングの奥に個室の書斎を用意。壁面には可動棚を設けています。趣味のフィギュアやコレクションをずらりと飾ったり、絵本や小説、料理本などの書籍を並べて家族共用の図書室として使うのもおすすめです。

    収納力ある個室がついた「ちはやプラン」

  • 洗濯動線を追求した「ちはやプラン」

    ちはや
    間取り図
    • ちはや
    • ファミリークロークあり

    洗面脱衣室の隣に室内干し用のドライエリアを、さらにその隣にファミリークローゼットを用意。〝洗う・干す・収納する〟がこのスペースで一気に片付きます。天気や来客を気にせず洗濯物が干せるのもうれしいポイントです。

    洗濯動線を追求した「ちはやプラン」

  • 家具を選ぶ楽しみがある「うたげプラン」

    うたげ
    間取り図
    • うたげ
    • 広いリビング

    南側の大きな横長リビングは約20帖。家具のレイアウトがしやすいため、インテリアを選ぶ楽しみが広がります。リビングとダイニングの間に本棚などを置いて、ゆるくゾーニングするのもおすすめです。

    家具を選ぶ楽しみがある「うたげプラン」

  • 衣服がすっきり片付く「ちはやプラン」

    ちはや
    間取り図
    • ちはや
    • ファミリークロークあり

    洗面脱衣室の奥にファミリークローゼットを用意。家族の衣服をまとめて収納することで、衣替えの必要がなくなります。各居室が衣服で散らかることもなくなり、限られたスペースを有効活用できるように!

    衣服がすっきり片付く「ちはやプラン」

  • キッチンから部屋全体を見渡せる「つきよプラン」

    つきよ
    間取り図
    • つきよ
    • 広いダイニング

    キッチン横のダイニングスペースを広く確保したプラン。食事を楽しむ場所とくつろぐ場所を分けたい方におすすめです。キッチンで作業中もダイニングやリビングに声が届きやすく、家族がくつろぐ様子を見渡せます。

    キッチンから部屋全体を見渡せる「つきよプラン」

  • あるとうれしい! 畳スペース付き「こかげプラン」

    こかげ
    間取り図
    • こかげ
    • 畳コーナーあり

    約22帖のリビングに畳コーナーを設けて和の雰囲気をプラス。やわらかな畳の上でお子様が遊ぶ様子が、キッチンからも眺められるレイアウトになっています。アイロンがけや洗濯物をたたむときにも重宝するスペースです。

    あるとうれしい! 畳スペース付き「こかげプラン」

  • 家族が思い思いにくつろげる「うたげプラン」

    うたげ
    間取り図
    • うたげ
    • 広いリビング

    光が差し込む南側のリビングは、20帖を超える広々空間。ダイニングテーブル、大型のソファーを置いてゆとりある空間にラグやビーズクッションを取り入れて、家族の居場所を増やすのもおすすめです。

    家族が思い思いにくつろげる「うたげプラン」

  • 畳でひなたぼっこがかなう「こかげプラン」

    こかげ
    間取り図
    • こかげ
    • 畳コーナーあり

    日当たりの良いリビングの南側に、畳コーナーを用意。あたたかな光を浴びながらゴロゴロしたりお昼寝したりと、ゆったり過ごせます。洗面脱衣室の横に2階へ上がる階段を設けているので、洗濯の動線も◎

    畳でひなたぼっこがかなう「こかげプラン」

  • みんなで食卓を囲む「うたげプラン」

    うたげ
    間取り図
    • うたげ
    • 広いダイニング

    大きなテーブルが置けるダイニングは、家族や仲間を招いてパーティーも可能。キッチンとダイニングが対面しているので、料理をしていてもゲストとの会話がはずみます。食後はリビングに移動してゆったり過ごすのも◎。

    みんなで食卓を囲む「うたげプラン」

  • 収納力あるシューズクローク付き「ちはやプラン」

    ちはや
    間取り図
    • ちはや
    • シューズクロークあり

    玄関まわりの収納力が自慢のプラン。扉付きのシューズクロークはホールにつながっているので、家族用と来客用の動線を分けることができます。広めのポーチには宅配ボックスを置くことも可能です。

    収納力あるシューズクローク付き「ちはやプラン」

  • おこもりスペース「ヌック」付き「こかげプラン」

    こかげ
    間取り図
    • こかげ
    • ヌックあり

    リビング横に、ひとり時間を楽しめるおこもり空間「ヌック」を用意。リビングにいる家族とゆるくつながりながら、読書やゲームなど趣味の時間に没頭できます。キッズスペースとして利用するのも◎。

    おこもりスペース「ヌック」付き「こかげプラン」

  • 毎日の洗濯がグッとラクになる「ちはやプラン」

    ちはや
    間取り図
    • ちはや
    • 水回り充実

    洗面脱衣室の近くにランドリールームを用意。室内干しも可能なので、出来上がった洗濯物を「干す・乾燥させる・畳む」がこの一部屋で完結します。キッチン横のパントリーからアクセスできる家事動線にも配慮しました。

    毎日の洗濯がグッとラクになる「ちはやプラン」

  • 回遊動線&収納ですっきり暮らせる「ちはやプラン」

    ちはや
    間取り図
    • ちはや
    • 水回り充実
    • 収納充実

    階段を中心に回遊動線を設けたプラン。広い洗面脱衣室には室内干しと衣類の収納スペースを用意し、日々の洗濯が楽に行えます。キッチン横にはパントリー、リビングにも収納を設けた、散らかりにくい家です

    回遊動線&収納ですっきり暮らせる「ちはやプラン」

  • 料理も家事もはかどる!「こかげ」プラン

    こかげ
    間取り図
    • こかげ
    • 収納充実

    キッチン横に大容量のパントリーを用意。食料品をまとめ買いするご家庭にぴったりのプランです。広い洗面脱衣室にも室内物干しや収納を設けており、日々の家事をラクにこなしたい方にもおすすめ

    料理も家事もはかどる!「こかげ」プラン

  • 自転車も置けるSCが魅力の「うたげ」プラン

    うたげ
    間取り図
    • うたげ
    • シューズクロークあり

    玄関土間に大きなシューズクロークを用意。外遊びの道具はもちろん、BBQセットやキャンプグッズも無理なく収まります。雨風や直射日光を避けて保管できるので、大切に乗りたい自転車を置くこともできます。

    自転車も置けるSCが魅力の「うたげ」プラン

  • 横並びダイニングで家族時間が増える「こかげプラン」

    こかげ
    間取り図
    • こかげ
    • 広いダイニング

    キッチンとダイニングテーブルを横並びに配置することで、配膳や片付けを楽に行うことができます。料理をしながら家族とのコミュニケーションも取りやすいので、ダイニングで宿題をするお子様の様子を見てあげることも

    横並びダイニングで家族時間が増える「こかげプラン」

  • 家族とちょうどいい距離でつながる「こかげプラン」

    こかげ
    間取り図
    • こかげ
    • ヌックあり

    仕切りのなくゾーニングされた「ヌック」が魅力の間取り。ひとり時間を楽しめるおこもりスペースにいながら、キッチン、ダイニング、リビングにいる家族との会話も楽しめます。自分の時間も、家族との時間も大切にしたい人に。

    家族とちょうどいい距離でつながる「こかげプラン」

  • マルチに使える畳スペースがある「こかげプラン」

    こかげ
    間取り図
    • こかげ
    • 畳コーナーあり

    キッチン横に3帖の畳スペースを設けたこかげプラン。来客の宿泊スペースや小さいお子様のプレイルームなどマルチに活用できます。段差がなくリビングとフラットにつながるので、空間を圧迫せずリビングとも自然に調和します。

    マルチに使える畳スペースがある「こかげプラン」

  • リビング広々!回遊性も◎な「ちはやプラン」

    ちはや
    間取り図
    • ちはや
    • 広いリビング

    ゆったりとしたリビングは20帖超え。ダイニング、リビングと家族が思い思いの場所で過ごすことができます。キッチンの左右に通路を確保しているので、リビングからの出入りがしやすく、調理・家事の動線が良いのもポイントです。

    リビング広々!回遊性も◎な「ちはやプラン」

  • 水回り充実の「ちはやプラン」

    ちはや
    間取り図
    • ちはや
    • 水回り充実

    洗面所と脱衣室をセパレートさせた水回り充実のプラン。朝の忙しい時間帯にもシャワーとドレッサーを別々の人が使うことができます。ごちゃつきがちな脱衣室をゲストに見せることなく洗面所を使ってもらえるのも◎。

    水回り充実の「ちはやプラン」

  • 家事動線の良さが魅力の「ちはやプラン」

    ちはや
    間取り図
    • ちはや
    • 水回り充実

    洗面脱衣室の隣にウォークインクローゼットを設けた「ちはやプラン」。洗濯物の出し入れが楽に行えます。さらにキッチン~ウォークインクローゼット~洗面脱衣室が一直線に並んでいるため、家事動線も抜群!

    家事動線の良さが魅力の「ちはやプラン」

  • 自由に使えるワークスペースが魅力の「つきよプラン」

    つきよ
    間取り図
    • つきよ
    • 書斎あり

    リビングの一角にカウンター付きのワークスペースを用意。書斎、作業場、お子様の宿題スペースなど自由にお使いいただけます。ダイニングとリビングがゆるくゾーニングされているので、家族が思い思いの場所でゆったり過ごせます。

    自由に使えるワークスペースが魅力の「つきよプラン」

  • ヌックと造作カウンターが自慢の「こかげプラン」

    こかげ
    間取り図
    • こかげ
    • ヌックあり

    リビング横に仕切りを設けないおこもりスペース「ヌック」を用意。階段下収納にお子様のおもちゃをまとめて、プレイルームとして使うのがオススメです。キッチンの対面にあるカウンターは作業場やお子様の宿題スペースに。

    ヌックと造作カウンターが自慢の「こかげプラン」

  • 造作カウンター付きランドリールームが魅力の「ちはやプラン」

    ちはや
    間取り図
    • ちはや
    • 水回り充実

    洗面脱衣室の隣に設けたランドリースペースが魅力のプラン。室内物干しもあるので、雨の日や花粉が気になる季節もストレスなく洗濯を行えます。造作カウンターの上で洗濯物を畳んだりアイロンをかけることも◎。

    造作カウンター付きランドリールームが魅力の「ちはやプラン」

  • L字型のLDKが魅力の「ちはやプラン」

    ちはや
    間取り図
    • ちはや
    • 広いリビング
    • 広いダイニング

    LDKをL字型に設計したプラン。キッチンからダイニングへの動線が良く、配膳が楽に行えます。リビングとの距離も近いので、料理をしながらソファーでくつろぐ家族ともコミュニケーションが取りやすくなっています。

    L字型のLDKが魅力の「ちはやプラン」

  • 家族がゆったり過ごせる「つきよプラン」

    つきよ
    間取り図
    • つきよ
    • 書斎あり
    • 広いリビング
    • 広いダイニング

    21.2帖の広いLDKが魅力。キッチンとダイニングが横並びのため、配膳が楽に行えます。キッチンの対面には書斎を用意。お子様の宿題スペースにおすすめです。ゆったり余裕のあるLDKで、各々の場所で家族団らんの時間を過ごせます。

    家族がゆったり過ごせる「つきよプラン」

  • 家事を楽に、すっきり暮らす「ちはやプラン」

    ちはや
    間取り図
    • ちはや
    • ファミリークロークあり
    • 収納充実

    キッチンの後ろに水回りを集約。料理の合間に洗濯を回したり、衣類をファミリークローゼットで一元管理したりと、家事が楽になる間取りです。リビングから冷蔵庫が見えない配置や、キッチン横・廊下のこまごました収納ですっきり暮らしたい人におすすめです。

    家事を楽に、すっきり暮らす「ちはやプラン」

  • 限られた敷地でも賑やかにくらせる「うたげプラン」

    うたげ
    間取り図
    • うたげ
    • 広いリビング
    • 吹き抜け

    細長く限られた敷地条件の中でも光や風をふんだんに取り込む開放的なLDKを実現しました。キッチンと水回りの動線を分け、家族はもちろん来客時も気兼ねなく使うことが出来ます。

    限られた敷地でも賑やかにくらせる「うたげプラン」

  • 吹き抜けで空間がつながる「うたげプラン」

    うたげ
    間取り図
    • うたげ
    • 広いリビング
    • 吹き抜け
    • パントリー

    開放感のある吹き抜けでリビングと居室を緩やかにつなぎました。視線と気配が自然と交わる開放的な空間です。

    吹き抜けで空間がつながる「うたげプラン」

  • 使いやすさが行き届いた収納と動線の「ちはやプラン」

    ちはや
    間取り図
    • ちはや
    • ファミリークロークあり
    • 収納充実

    「ちはやプラン」家に帰ってから、荷物を片付け、手を洗いリビングでくつろぐまで日々の動きをスムーズに導く収納配置と動線計画で快適な暮らしを支えます。

    使いやすさが行き届いた収納と動線の「ちはやプラン」

  • 洗濯物をすぐにしまえる「ちはやプラン」

    ちはや
    間取り図
    • ちはや
    • 書斎あり

    2階の室内物干スペースからそのまま隣接するWICへ。干す・しまう の流れを最短で完結し毎日の家事が楽になる動線です。

    洗濯物をすぐにしまえる「ちはやプラン」

  • 水回り動線がスムーズな「ちはやプラン」

    ちはや
    間取り図
    • ちはや
    • 水回り充実
    • 収納充実

    「ちはやプラン」北側に設けた裏動線が水回りへの動きを効率的にサポートします。ランドリー・洗面エリアを分けており身支度や家事の時間が重なっても気兼ねなく利用できます。

    水回り動線がスムーズな「ちはやプラン」

  • 部屋の内と外をつなぐ「うたげプラン」

    うたげ
    間取り図
    • うたげ
    • 水回り充実
    • 収納充実

    南側リビングからそのまま外に出ることができる掃き出し窓を用意。ウッドデッキを設けると、狭小地でも部屋を広く見せる効果があります。また、お子様の外遊びスペースや庭遊びの際に腰掛けたりと多用途に使用できます。

    部屋の内と外をつなぐ「うたげプラン」

  • コンパクトな家事動線のある「ちはやプラン」

    ちはや
    間取り図
    • ちはや
    • 収納充実

    家事動線を意識して、洗面脱衣室内に物干しスペースを用意。洗濯物が乾いたら、そのままウォークインクローゼットに収納できます。水回り設備が集約されているので、効率的な生活を送れます。

    コンパクトな家事動線のある「ちはやプラン」

  • 明るい畳コーナーがある「こかげプラン」

    こかげ
    間取り図
    • こかげ
    • 畳コーナーあり

    家族が集まる場所に、3帖の畳コーナーを設けることで、さらなる居場所を創出。ゴロゴロ寝っ転がりながら家族との団らんを楽しむことができます。押入れを設けているので、来客用布団の収納も可能です。

    明るい畳コーナーがある「こかげプラン」

  • 明るく広々としたリビングダイニングがある「うたげプラン」

    うたげ
    間取り図
    • うたげ
    • 広いリビング

    約20畳のLDKは奥行きを感じさせる開放的な空間で、キッチンから全体を見渡せるため、常に繋がりを感じられます。友人を招いても広々と使えるので、多様な過ごし方が可能です。

    明るく広々としたリビングダイニングがある「うたげプラン」

  • 家族が集まやすい空間のある「うたげプラン」

    うたげ
    間取り図
    • うたげ
    • 広いリビング
    • 収納充実

    キッチン前にお子様が勉強などを行うことができるカウンターを用意。家族が同じ空間に集まることで自然に会話が生まれ、明るい家庭を作り出すことができます。

    家族が集まやすい空間のある「うたげプラン」

  • こもれる空間のある「つきよプラン」

    つきよ
    間取り図
    • つきよ
    • 広いリビング

    階段横のスペースは、家事も趣味も楽しめるお一人時間のくつろぎ空間にオススメの場所となっています。集中して読書をするのも◎

    こもれる空間のある「つきよプラン」

  • ひとり時間のためのワークスペースがある「つきよプラン」

    つきよ
    間取り図
    • つきよ
    • 水回り充実
    • 収納充実

    キッチン前にカウンター付きのワークスペースを用意。デスクワーク、作業、お子様の宿題など自由にお使いいただけます。カフェのような適度な閉鎖感が集中力を高める効果も期待できます。

    ひとり時間のためのワークスペースがある「つきよプラン」

  • 生活動線がスムーズな「ちはやプラン」

    ちはや
    間取り図
    • ちはや
    • 収納充実
    • 吹き抜け

    1Fの洗面脱衣室に大容量のWICを隣接させたプラン。洗濯物を干した後、すぐにクローゼット内に収納することができます。また、水まわりとLDKを回遊できる間取りとなっているので、家の中をスムーズに移動でき、暮らしやすさが向上します。

    生活動線がスムーズな「ちはやプラン」

  • 自分だけのお気に入り空間がある「つきよプラン」

    つきよ
    間取り図
    • つきよ
    • 広いリビングヌックあり

    明るい南側リビングの一角におこもりスペースとなるヌックを用意。一人用サイズの空間となっており、読書をするなど自分の時間を大切に過ごすことができます。

    自分だけのお気に入り空間がある「つきよプラン」

  • 居心地の良い畳がある「こかげプラン」

    こかげ
    間取り図
    • こかげ
    • 畳コーナーあり

    リビングの横に畳コーナーを設け、居心地の良い和の空間をとしています。日々の生活の中に落ち着いた雰囲気を作り出すとともに、季節の節句の飾りつけのできる板間が趣を演出します。

    居心地の良い畳がある「こかげプラン」

  • 適材適所の収納で片付く「ちはやプラン」

    ちはや
    間取り図
    • ちはや
    • 収納充実

    1階にファミリークロークやパントリー、洗面・リビング収納を配置。使う場所のすぐそばに収納があるから、片付けが無理なく、気持ちよく続けられる住まいです。

    適材適所の収納で片付く「ちはやプラン」

  • 片付く収納と回遊動線のある「ちはやプラン」

    ちはや
    間取り図
    • ちはや
    • 収納充実

    1階にはファミリークロークやパントリー、水まわり、リビング収納をバランスよく配置し、自然と片付く工夫を凝らしています。壁付けキッチンを採用することで、コンパクトながらも広がりを感じられる快適なLDK空間を実現しました。

    片付く収納と回遊動線のある「ちはやプラン」

  • 広い土間を多彩に使える「こかげプラン」

    こかげ
    間取り図
    • こかげ
    • 玄関土間
    • ワークスペース

    玄関とLDKをつなぐように広がる土間空間。趣味を楽しむ場として、また来客時にはLDKと一体化させて大空間として活用できるなど、暮らしのシーンを豊かに広げます。

    広い土間を多彩に使える「こかげプラン」

  • 洗濯動線がスムーズな「ちはやプラン」

    ちはや
    間取り図
    • ちはや
    • 水回り充実

    1階の広い洗面カウンターと物干しスペース、さらに2階のゆとりあるホールを活かし、洗濯動線を快適に整えた住まい。毎日の家事をスマートにサポートします。

    洗濯動線がスムーズな「ちはやプラン」

  • 2wayの畳コーナーでくつろぐ「こかげプラン」

    こかげ
    間取り図
    • こかげ
    • 畳コーナーあり

    LDKのダイニングスペースに隣接して扉で仕切れる畳コーナーを設置。扉を開けて広々LDKにすることも、仕切ってお昼寝などに使うことが可能です。

    2wayの畳コーナーでくつろぐ「こかげプラン」

  • 自然と片付く「ちはやプラン」

    ちはや
    間取り図
    • ちはや
    • ワークスペース
    • 収納充実

    玄関付近に土間収納・クローゼット・可動棚が備えてあり用途で使い分けできます。リビング階段下の作業スペースはダイニングテーブルの散らかりを防ぎます。

    自然と片付く「ちはやプラン」

  • 2つのワークスペースで趣味も仕事も楽しむ「つきよプラン」

    つきよ
    間取り図
    • つきよ
    • ヌックあり
    • 書斎あり

    1階LDKには趣味や軽い家事に使えるオープンなヌック、2階にはリモートワークにも対応可能な書斎を設けています。作業内容や気分に合わせて選べる2つのワークスペースが柔軟で快適な家族の暮らしをサポートします。

    2つのワークスペースで趣味も仕事も楽しむ「つきよプラン」

  • 家族との繋がりを感じられる「こかげプラン」

    こかげ
    間取り図
    • こかげ
    • 畳コーナーあり

    リビング横に畳コーナーを用意。来客の宿泊スペースや小さいお子様のプレイルームなどマルチに活用できます。別々の場所にいながらも、家族の繋がりを感じられる空間構成としました。

    家族との繋がりを感じられる「こかげプラン」

  • 広々とした空間がある「こかげプラン」

    こかげ
    間取り図
    • こかげ
    • 畳コーナーあり

    間仕切りのない畳コーナーをLDKと隣接させ、広々とした空間を実現したプラン。畳コーナーから約20帖の部屋全体を見渡すことができ、落ち着きがありながらも開放的で心地の良いスペースとなっています。間仕切りが無いことで、キッチンから畳コーナーで遊ぶお子様の様子をすぐに確認することも可能です。

    広々とした空間がある「こかげプラン」

  • 自分時間に没頭できる「つきよプラン」

    つきよ
    間取り図
    • つきよ
    • ヌックあり

    ヌックにより、家族の気配を感じながらも、個人の時間を大切できるプラン。程よく独立した空間では、読書をしたり、趣味に没頭したり、時には昼寝をしたりと、パーソナルなくつろぎの時間を過ごすことができます。

    自分時間に没頭できる「つきよプラン」

  • 吹抜による開放的な空間のある「うたげプラン」

    うたげ
    間取り図
    • うたげ
    • 収納充実
    • 吹き抜け

    18.6帖のLDKに大きな吹抜と窓を設け、明るく開放的な空間を実現したプラン。帖数以上の広さを感じることができ、たくさんの人を招いても窮屈さがありません。多人数に対応できる収納力も兼ね備えたプランです。

    吹抜による開放的な空間のある「うたげプラン」

  • 狭小地でも吹抜で明るい「うたげプラン」

    うたげ
    間取り図
    • うたげ
    • 吹き抜け

    リビング上部に4帖分の吹き抜けを設け、開放感あふれるLDKを実現。大きな窓から光が降り注ぎ、明るく心地よい空間が広がります。

    狭小地でも吹抜で明るい「うたげプラン」

  • ファミリークローゼットと回遊動線のある「ちはやプラン」

    ちはや
    間取り図
    • ちはや
    • ファミリークロークあり

    1階にファミリークローゼットと広めの洗面脱衣室を配置。回遊動線で家事も身支度もスムーズに行え、日々の暮らしを快適に整えます。

    ファミリークローゼットと回遊動線のある「ちはやプラン」

  • 広々LDKと適材適所の収納で快適に暮らす「ちはやプラン」

    ちはや
    間取り図
    • ちはや
    • 広いリビング
    • 収納充実

    約20帖の広々LDKを中心に、回遊できる動線と適材適所の収納を備えた住まい。片付けやすく動きやすい間取りで、毎日の暮らしを快適にします。

    広々LDKと適材適所の収納で快適に暮らす「ちはやプラン」

  • タタミコーナーと回遊動線のある「こかげプラン」

    こかげ
    間取り図
    • こかげ
    • 畳コーナーあり

    リビングに隣接した収納付きのタタミコーナーは、家族の暮らしに合わせて多用途に活用可能。回遊動線を備え、家事や移動がスムーズで快適な住まいです。

    タタミコーナーと回遊動線のある「こかげプラン」

  • 充実の収納と多用途カウンターのある「こかげプラン」

    こかげ
    間取り図
    • こかげ
    • ワークスペース
    • 収納充実

    パントリーやシューズクロークなど各所に収納を設け、ダイニング横には多用途に使える長いカウンターを配置。片付けやすく、家事や趣味もスムーズにこなせる暮らしやすいプランです。

    充実の収納と多用途カウンターのある「こかげプラン」

  • 広々LDKとワークスペースのある「つきよプラン」

    つきよ
    間取り図
    • つきよ
    • 広いリビング
    • ワークスペース

    約20帖の広々LDKに、ワークスペースを配置。家族の気配を感じながらも集中でき、趣味や学習、作業など多彩に活用できる快適な住まいです。

    広々LDKとワークスペースのある「つきよプラン」

  • 仕切れる和室をリビングとして使える、くつろぎ上手な「こかげプラン」

    こかげ
    間取り図
    • こかげ
    • 畳コーナーあり
    • 収納充実

    ごろりと横になれる畳空間は、来客時には個室にも早変わり。1階には豊富な収納を確保し、日々の片付けもスムーズに行える住まいです。

    仕切れる和室をリビングとして使える、くつろぎ上手な「こかげプラン」

  • 時短動線と多用途タタミで暮らしが広がる「ちはやプラン」

    ちはや
    間取り図
    • ちはや
    • 畳コーナー

    キッチン横に水まわりをまとめた家事効率の良い動線が魅力のプラン。洗面と脱衣室を分けることで使い勝手が向上しています。さらにリビング脇には2帖のこあがりタタミコーナーを設け、お子様の遊び場やごろ寝、読書など多用途に活用できます。

    時短動線と多用途タタミで暮らしが広がる「ちはやプラン」

  • 様々な過ごし方を叶える「こかげプラン」

    こかげ
    間取り図
    • こかげ
    • 畳コーナー

    ダイニング脇の3帖畳コーナーは、お子様の遊び場から学習・休憩まで多用途に活躍。さらに2階ホールは洗濯物干しや子どもの遊びスペースとして使える、家事も育児も快適なプランです。また、洗面と脱衣室を分けることで家族での使い勝手にも配慮しました。

    様々な過ごし方を叶える「こかげプラン」

  • 集まって楽しむ居心地重視の「うたげプラン」

    うたげ
    間取り図
    • うたげ
    • シューズクロークあり
    • 収納充実
    • 書斎スペースあり

    開放的なLDKは友人・親戚を呼び、集まってワイワイできる広さを確保しています。

    集まって楽しむ居心地重視の「うたげプラン」

  • LDKのタタミコーナーでおうち時間を満喫する「こかげプラン」

    こかげ
    間取り図
    • こかげ
    • 畳コーナーあり

    リビングの一角には、家族みんなでゴロゴロできる3帖のタタミコーナーをご用意。キッチン横のパントリーから広い洗面室へと抜ける「回遊動線」が家事をスムーズにしてくれるから、浮いた時間で心ゆくまでおうち時間を楽しめます。

    LDKのタタミコーナーでおうち時間を満喫する「こかげプラン」

  • 家族が集うタタミコーナーと、家事完結動線のある「こかげプラン」

    こかげ
    間取り図
    • こかげ
    • 畳コーナーあり
    • ファミリークロークあり

    キッチンから目の届くタタミコーナーは、お子様の遊び場や家族の休憩スペースに最適。さらに、洗って干してそのまましまえる「洗面室+ファミリークローク」を1階に配置。家事の移動を極限まで減らすことで、家族と過ごすゆとりの時間を生み出します。

    家族が集うタタミコーナーと、家事完結動線のある「こかげプラン」

  • 適材適所のたっぷり収納で片付け上手な「ちはやプラン」

    ちはや
    間取り図
    • ちはや
    • 収納充実
    • ファミリークロークあり

    3帖の洗面室で室内干しをし、隣のファミリークロークへ即収納。最短の洗濯動線に加え、リビング・廊下・居室の「使う場所」に合わせた豊富な収納が、散らからない住まいを実現します。さらにタイヤ等を保管できる屋根付きの外部収納も完備。家の中も外もスッキリ片付く工夫が満載です。

    適材適所のたっぷり収納で片付け上手な「ちはやプラン」

  • 3方向に広がる「ちはやプラン」

    ちはや
    間取り図
    • ちはや
    • 書斎あり

    キッチンの前にパントリーを設けており買ってきた食材をすぐに収納したり、必要な食材を取り出してそのまま調理できる使い勝手の良い配置です。

    3方向に広がる「ちはやプラン」

  • ゆとりある水回り動線が魅力の「ちはやプラン」

    ちはや
    間取り図
    • ちはや
    • 水回り充実

    玄関側・LDK側2方向から回遊できる水回り動線です。洗面室・ランドリーを分け、それぞれ広さを取っているので、家族で使いたい時間が重なっても気兼ねなく使えます。忙しい毎日でも効率よく生活ができる住まいです。

    ゆとりある水回り動線が魅力の「ちはやプラン」

  • 日常も趣味も楽しむ暮らしを叶える「うたげプラン」

    うたげ
    間取り図
    • うたげ
    • シューズクロークあり
    • 吹き抜け

    南向きの吹き抜けが、LDKに入った瞬間から明るく開放的な空間を演出します。階段下の土間収納には、ベビーカーやアウトドア用品などの大きな荷物もすっきり収納できます。

    日常も趣味も楽しむ暮らしを叶える「うたげプラン」

  • 収納で暮らしが整う「ちはやプラン」

    ちはや
    間取り図
    • ちはや
    • 収納充実

    暮らしの動線に沿って収納スペースを確保しました。リビング、各居室、2F廊下に加え、要望の多いキッチンパントリーもあります。洗面所は室内干しも可能な広さです。

    収納で暮らしが整う「ちはやプラン」

プランをもっと見る
  • 戻る
  • 次へ進む
  • 戻る
  • 次へ進む

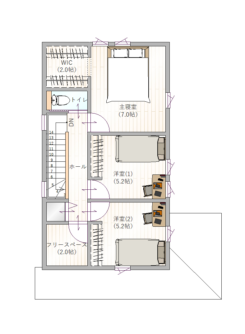
2Fのフリースペースの
使い方を選択してください。

  • 仕事スペース

    仕事スペース

  • 趣味のスペース

    趣味のスペース

  • 収納スペース

    収納スペース

  • 隣の部屋とつなげる(一部プランのみ)

    隣の部屋とつなげる(一部プランのみ)

  • そのまま利用

    そのまま利用

  • 戻る
  • 次へ進む
  • 戻る
  • 次へ進む

お好みの外観のデザインを
選択してください。

  • 切妻(きりづま)

    切妻(きりづま)

    四方に向かって傾斜した屋根で、上方に棟があるもの。住宅に多く用いられます。

  • 寄棟(よせむね)

    寄棟(よせむね)

    4方向に流れる屋根。重厚感のある外観デザインに向いています。雨や日差し、汚れから家を守りやすい形状です。

  • 片流れ(かたながれ)

    片流れ(かたながれ)

    一方向に流れるシンプルな屋根。モダンな家によく似合います。太陽光パネルを設置しやすい形状です。

  • 戻る
  • 次へ進む
  • 戻る
  • 次へ進む

お好みの外装のテイストを
選択してください。

  • モダン

    モダン

  • ナチュラルモダン

    ナチュラルモダン

  • ジャパニーズモダン

    ジャパニーズモダン

  • カントリー

    カントリー

  • 戻る
  • 次へ進む
  • 戻る
  • 次へ進む

お好みの内装テイストを
選択してください。

  • モダン

    モダン

  • ナチュラルモダン・シック

    ナチュラルモダン・シック

  • ナチュラルモダン・ライト

    ナチュラルモダン・ライト

  • ジャパニーズモダン・モノクロ

    ジャパニーズモダン・モノクロ

  • ジャパニーズモダン・きなり

    ジャパニーズモダン・きなり

  • カントリー・フレンチ

    カントリー・フレンチ

  • カントリー・ノルディック

    カントリー・ノルディック

  • カントリー・ナチュラル

    カントリー・ナチュラル

  • 戻る
  • 次へ進む
  • 戻る
  • 次へ進む

希望するオプションを選んでください。

  • オプション不要

  • 制震ダンパー

  • シャッター(雨戸)

  • 太陽光パネル

  • ランドリーパイプ

  • タイル内装

  • ニッチ

  • ハイドア

  • タタミ(和性樹脂)

  • 食器棚

  • エアコン設置

  • エネルギーマネジメントシステム

  • 宅配ボックス

  • ウッドデッキ(樹脂木)

  • タイルデッキ

  • 深型食洗器

  • 洗浄機能つきレンジフード

  • IHグレードアップ

  • スイッチプレート

  • アルミベランダ

  • ライフスタイル
    変更
  • 間口
  • プラン
  • スペース
  • 外観
  • 内装
  • オプション

ライフスタイルの変更

  • うたげ
  • こかげ
  • ちはや
  • つきよ
  • 選択しない

    選択しない

特徴の変更

  • 広いリビング

    広いリビング

  • 広いダイニング

    広いダイニング

  • 畳コーナーあり

    畳コーナーあり

  • シューズクロークあり

    シューズクロークあり

  • 書斎あり

    書斎あり

  • ファミリークロークあり

    ファミリークロークあり

  • 土間スペースあり

    土間スペースあり

  • 収納充実

    収納充実

  • ヌックあり

    ヌックあり

  • 水回り充実

    水回り充実

  • 吹き抜け

    吹き抜け

  • 選択しない

    選択しない

プラン作成中

お見積り中